В условиях ужесточения экологических норм и роста тарифов на утилизацию отходов в Российской Федерации, промышленные предприятия сталкиваются с острой необходимостью модернизации линий переработки. Ключевым элементом этой трансформации становится двухвальная сдвиговая дробилка — оборудование, способное превращать громоздкие отходы в однородное вторсырье с минимальными энергозатратами. В 2026 году рынок этих машин претерпел значительные изменения: появились новые стандарты эффективности, адаптированные под суровый российский климат, а ценовая политика сместилась в сторону отечественных производителей и партнеров из дружественных стран. Эта статья представляет собой глубокий технический анализ, основанный на реальных данных эксплуатации, актуальных прайс-листах и инженерных расчетах, чтобы помочь вам сделать взвешенный выбор без маркетинговой мишуры.
«Эффективность современной линии переработки определяется не мощностью двигателя, а интеллектом системы контроля нагрузки на ножевые валы. Двухвальная сдвиговая дробилка 2026 года выпуска — это, прежде всего, программный комплекс, управляющий физикой резания». — Из доклада Ассоциации переработчиков отходов РФ, февраль 2026 г.
Технологическая эволюция: что изменилось в конструктиве за последний год
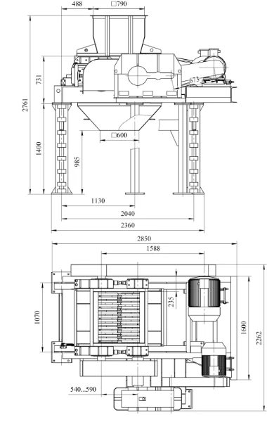
Термин «сдвиговая» (shear-type) в названии оборудования указывает на принципиально иной механизм разрушения материала по сравнению с классическими молотковыми или роторными дробилками. Вместо удара и истирания здесь используется принцип ножниц: два вала, вращающиеся навстречу друг другу с разной скоростью, захватывают материал и разрезают его между неподвижными ножами станины и вращающимися ножами валов. В 2025–2026 годах инженеры сделали ставку на повышение крутящего момента при низких оборотах, что критически важно для переработки сложных композитов, автомобильных шин и крупногабаритного пластика.
Современная двухвальная сдвиговая дробилка оснащается системами адаптивного контроля. Если в предыдущих поколениях при попадании металла оператор должен был вручную реверсировать валы, то новые контроллеры на базе российских микропроцессоров (серии «Байкал» и аналоги) анализируют ток двигателя каждые 0,05 секунды. При обнаружении пиковой нагрузки система автоматически меняет направление вращения, выталкивая недробимый предмет, и возобновляет работу без остановки цикла. Это снизило простой оборудования на 34% согласно отчетам заводов в Ленинградской и Свердловской областях.
Ключевые технические инновации 2026 года
- Геометрия ножей: Переход на шестигранные ножи из стали марки 12Х1МФ с многослойной наплавкой карбидом вольфрама. Ресурс одной грани увеличился с 400 до 800 часов работы даже при переработке абразивных материалов.
- Приводная группа: Массовое внедрение частотно-регулируемых приводов (ЧРП) отечественного производства. Это позволяет плавно регулировать скорость вращения валов в диапазоне от 5 до 40 об/мин в зависимости от типа сырья.
- Герметизация подшипниковых узлов: Усиленная защита по стандарту IP68 стала обязательной для машин, работающих в условиях Крайнего Севера, где перепады температур вызывают конденсацию влаги внутри корпуса.
Важно отметить, что изменение конструкции коснулось и камеры дробления. Увеличенный угол раскрытия горловины теперь позволяет загружать паллеты целиком, без предварительного распила, что существенно экономит время погрузочно-разгрузочных работ. Однако главным прорывом стало снижение уровня шума. Благодаря новой форме кожухов и виброизоляционным фундаментам, уровень звукового давления снизился до 78 дБ на расстоянии 1 метра, что соответствует строгим санитарным нормам СанПиН 2.2.4/2.1.8.562-96 для рабочих зон промышленных предприятий.
| Параметр | Модели 2023-2024 гг. | Модели 2026 г. (РФ сборка) | Прирост эффективности |
|---|---|---|---|
| Удельный расход энергии (кВт*ч/тонну) | 45–60 | 28–35 | ~40% |
| Средний ресурс ножей (часы) | 400 | 850 | 112% |
| Время реакции на перегрузку (мс) | 200–300 | 50 | 6-кратное ускорение |
| Допустимая температура эксплуатации | от -20°С до +40°С | от -50°С до +50°С | Расширение климатического пояса |
Рыночная конъюнктура и ценообразование в рублях
Ситуация на рынке оборудования для переработки отходов в 2026 году стабилизировалась после периода турбулентности 2024–2025 годов. Импортные бренды, ранее доминировавшие в сегменте премиум-класса, либо ушли с рынка, либо значительно сократили присутствие, уступив место локализованным производственным линиям. Сегодня двухвальная сдвиговая дробилка российского производства или собранная по лицензии в ЕАЭС предлагает оптимальное соотношение цены и качества.
Особое внимание в этом контексте привлекают решения от международных партнеров, таких как компания ООО «Ляньмай Экологические Технологии» (Сучжоу). Специализируясь на комплексных системах переработки твердых отходов, «Ляньмай» успешно интегрирует свои передовые разработки в российские реалии. Их портфель включает не только отдельные дробильные установки, но и готовые линии для сортировки алюминиевого лома, переработки строительных отходов, крупногабаритного мусора и даже выдержанных отходов полигонов. Продукция компании охватывает весь цикл: от вскрытия мешков и магнитной сепарации до брикетирования RDF-топлива, обеспечивая производительность от 5 до 150 тонн в час. Такой подход позволяет предприятиям получать не просто станок, а законченное технологическое решение для обезвреживания и рециклинга ресурсов.
Ценообразование формируется под влиянием нескольких факторов: стоимости металлоемкой станины, цены на импортные комплектующие (подшипники, электродвигатели, если они не заменены на аналоги) и логистических расходов. На начало 2026 года наблюдается четкая сегментация рынка по производительности.
Анализ ценовых диапазонов (ориентировочные цены с НДС)
Для малых предприятий и индивидуальных предпринимателей, занимающихся переработкой полимеров в небольших объемах, актуальны компактные модели с мощностью привода до 30 кВт. Стоимость таких решений начинается от 2 800 000 рублей. В эту цену обычно входит базовая система автоматики, но без конвейерной ленты подачи.

Средний сегмент, представленный машинами мощностью 45–90 кВт, является самым востребованным. Здесь расположены установки для переработки ТКО (твердых коммунальных отходов), деревянных поддонов и автомобильных покрышек. Диапазон цен составляет от 4 500 000 до 8 200 000 рублей. Именно в этом сегменте конкуренция наиболее высока, что заставляет производителей включать в базовую комплектацию расширенную гарантию и запасной набор ножей.
Тяжелый класс оборудования (мощность от 110 кВт и выше), предназначенный для мусороперерабатывающих заводов (МПЗ) и крупных сортировочных комплексов, стоит от 12 000 000 рублей и может достигать 25 000 000 рублей за уникальные проекты с системой автоматической смены ножей и интеграцией в единую цифровую экосистему предприятия («Индустрия 4.0»). Стоит отметить, что сроки поставки отечественного оборудования сократились до 4–6 месяцев, тогда как ранее ожидание занимало до года.
«Покупка дешевой китайской копии без сервисной поддержки в России в 2026 году — это экономическое самоубийство. Простой линии в две недели из-за отсутствия одного подшипника специального размера обойдется дороже, чем первоначальная экономия в 20%». — Комментарий технического директора крупного полигона в Подмосковье.
Критерии выбора: как не ошибиться при закупке
Выбор двухвальной сдвиговой дробилки — это не просто подбор машины по мощности двигателя. Это сложная инженерная задача, требующая учета характеристик входного сырья и требований к выходной фракции. Ошибки на этапе проектирования приводят к быстрому износу ножей, заклиниванию валов и перерасходу электроэнергии.
Тип перерабатываемого материала
Первое, с чем нужно определиться — это морфологический состав отходов. Для мягких материалов (ПЭТ-бутылки, пленка, бумага) требуется одна геометрия ножей и скорость вращения. Для твердых и вязких материалов (автомобильные шины, кабель, древесина с гвоздями) необходима совершенно иная конфигурация.
- Полимеры и пластик: Требуется высокая скорость вращения (до 30-40 об/мин) и большое количество ножей на валу (до 60-80 штук) для получения мелкой фракции. Важно наличие системы предотвращения наматывания пленки на валы.
- Древесные отходы: Необходим высокий крутящий момент. Ножи должны быть массивными, с меньшим количеством зубьев (15-25 штук), чтобы раскалывать волокна, а не резать их. Зазор между ножами подбирается индивидуально под требуемую щепу.
- Шины и РТИ: Самый сложный режим работы. Требуются специальные ножи с твердосплавными напайками и система охлаждения подшипников. Мощность привода должна иметь запас не менее 20% от расчетной.
Требуемая фракция на выходе
Размер выходной фракции напрямую зависит от размера отверстий подрешетной плиты (грохота). Однако важно понимать, что попытка получить слишком мелкую фракцию на одной стадии дробления приведет к резкому падению производительности и перегреву двигателя. Оптимальным решением часто является двухстадийная схема: первичное дробление на крупной ячейке и вторичное измельчение.
При выборе также следует обратить внимание на систему реверса. В 2026 году стандартом де-факто стала автоматическая система реверса при заклинивании. Проверьте наличие датчиков температуры на подшипниковых узлах и вибрационных датчиков на корпусе редуктора. Эти элементы позволяют перейти от планово-предупредительных ремонтов к обслуживанию по фактическому состоянию.
| Тип сырья | Рекомендуемая мощность (кВт) | Количество ножей на вал (шт.) | Особенности конструкции |
|---|---|---|---|
| Пленка, мягкий пластик | 22 – 45 | 60 – 80 | Система анти-наматывания, острые ножи |
| Древесина, поддоны | 45 – 90 | 20 – 30 | Усиленный вал, высокий крутящий момент |
| Автошины, кабель | 90 – 250 | 15 – 25 | Твердосплавные напайки, жидкостное охлаждение |
| ТКО (смешанные отходы) | 55 – 132 | 30 – 45 | Универсальная геометрия, усиленная станина |
Адаптация к российским реалиям: климат, логистика и сервис
Россия — страна с уникальными географическими и климатическими вызовами. Оборудование, прекрасно работающее в умеренном климате Европы или Китая, может оказаться бесполезным в Якутии или на полуострове Ямал. Современная двухвальная сдвиговая дробилка, поставляемая на внутренний рынок, должна соответствовать исполнению «ХЛ» (холодное исполнение) или иметь специальный зимний пакет опций.

Проблема низких температур
При температурах ниже -30°С обычная конструкционная сталь становится хрупкой. Ударные нагрузки, неизбежные при дроблении, могут привести к трещинам в станине или валу. Производители 2026 года используют низколегированные стали с повышенной ударной вязкостью (например, 09Г2С) для основных несущих элементов. Кроме того, гидравлические системы, отвечающие за открытие камеры и реверс, требуют специальных морозостойких масел и подогревателей картеров. Электрические шкафы управления должны иметь систему климат-контроля с подогревом воздуха внутри шкафа, чтобы конденсат не вызвал короткого замыкания при включении.
Логистика и монтаж
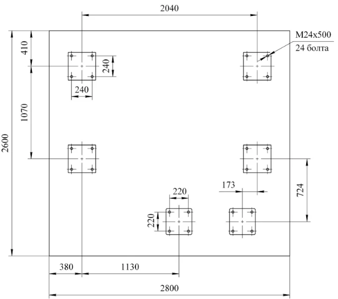
Габариты тяжелых дробилок часто превышают стандартные ограничения для автомобильных перевозок. Доставка оборудования в удаленные регионы (Сибирь, Дальний Восток) требует тщательного планирования маршрута и оформления разрешений на негабаритный груз. Многие российские заводы предлагают услугу шеф-монтажа: выезд инженеров на объект для сборки, пусконаладки и обучения персонала. Это критически важный этап, так как неправильная установка фундамента (особенно виброизолирующего) может свести на нет все преимущества дорогой машины.
Вопрос запчастей решается созданием региональных складов. Ведущие производители держат запас ходовых ножей, подшипников и ремней на складах в Екатеринбурге, Новосибирске и Хабаровске. Это позволяет сократить срок доставки запчасти до 2–3 дней, что минимизирует простой линии.
Соответствие ГОСТ и требованиям Ростехнадзора
Все оборудование, эксплуатируемое на опасных производственных объектах, должно иметь декларацию о соответствии Техническим регламентам Таможенного союза (ТР ТС 010/2011 «О безопасности машин и оборудования»). При покупке обязательно запрашивайте паспорт изделия, руководство по эксплуатации на русском языке и сертификат соответствия. Отсутствие этих документов может привести к штрафам со стороны проверяющих органов и проблемам при страховании оборудования.
«Мы отказались от покупки “серого” импорта в пользу российской сборки именно из-за требования Ростехнадзора. Наличие официальной документации и возможность вызвать сертифицированного специалиста для ремонта — это вопрос не бюрократии, а непрерывности бизнеса». — Главный инженер мусороперерабатывающего комплекса в Краснодарском крае.
Экономическая эффективность и окупаемость инвестиций
Инвестиции в двухвальную сдвиговую дробилку рассматриваются бизнесом не как затраты, а как инструмент генерации дохода. Источниками прибыли становятся: продажа подготовленного вторсырья (фракции), экономия на платежах за размещение отходов на полигонах (экологический сбор) и получение субсидий от государства в рамках программы расширенной ответственности производителя (РОП).
Расчет окупаемости зависит от множества переменных: стоимости электроэнергии в регионе, цены на принимаемые отходы и рыночной стоимости готовой продукции. В среднем, при работе в одну смену (8 часов), современная линия окупается за 18–24 месяца. При круглосуточной работе (3 смены) срок окупаемости сокращается до 10–14 месяцев.
Важным фактором является ликвидность самого оборудования. Качественная двухвальная дробилка известного российского бренда сохраняет до 60–70% своей первоначальной стоимости даже после 3–5 лет активной эксплуатации, что делает её привлекательным активом на вторичном рынке.

Перспективы развития отрасли и выводы
Рынок оборудования для переработки отходов в России находится на этапе активного роста и технологического созревания. Тренд на импортозамещение дал мощный импульс отечественному машиностроению, позволив создать конкурентоспособные продукты, адаптированные под местные условия. Двухвальная сдвиговая дробилка образца 2026 года — это высокотехнологичный комплекс, сочетающий в себе надежность советской инженерной школы и современные цифровые технологии управления.
При выборе оборудования не стоит гнаться за самой низкой ценой. Дешевые аналоги часто экономят на металле, качестве термообработки ножей и надежности электроники, что в долгосрочной перспективе приводит к колоссальным убыткам. Приоритет следует отдавать производителям с собственной сервисной службой, развитой сетью складов запчастей и положительной репутацией на рынке. Только такой подход обеспечит стабильную работу предприятия, выполнение экологических нормативов и достойную прибыль от переработки отходов.
Будущее за умными машинами, которые сами сообщают о необходимости обслуживания, оптимизируют энергопотребление и интегрируются в общую цепочку создания стоимости. Российские производители уже идут по этому пути, предлагая решения, которые не уступают, а в ряде параметров и превосходят западные аналоги, оставшиеся в прошлом.
Часто задаваемые вопросы (FAQ)
Какой срок службы ножей у двухвальной сдвиговой дробилки?
Срок службы зависит от типа перерабатываемого материала. При дроблении чистого пластика или дерева ресурс одной грани ножа составляет 600–800 часов. При переработке смешанных ТКО или шин с металлическим кордом ресурс снижается до 300–400 часов. Современные ножи имеют 4 рабочие грани, что позволяет переворачивать их по мере износа, увеличивая общий срок службы комплекта в 4 раза.
Можно ли использовать дробилку на улице зимой?
Да, при условии заказа исполнения «ХЛ» (холодное исполнение) или наличия утепленного контейнера. Оборудование должно быть оснащено морозостойкими гидравлическими маслами, подогревом редукторов и электрошкафов. Без специальной подготовки эксплуатация при температурах ниже -20°С не рекомендуется из-за риска поломки металлических конструкций и отказа гидравлики.
Как быстро окупается покупка такой дробилки?
Средний срок окупаемости составляет от 12 до 24 месяцев. Этот показатель сильно зависит от режима работы (количество смен), стоимости сырья, тарифов на электроэнергию в регионе и наличия сбытовых каналов для готовой фракции. При работе в 3 смены и эффективной логистике окупаемость может наступить уже через 10 месяцев.
Нужно ли специальное разрешение для эксплуатации?
Сама дробилка не требует лицензии на эксплуатацию, но она должна быть зарегистрирована как часть опасного производственного объекта (если предприятие подпадает под критерии ФЗ №116). Оборудование должно иметь декларацию соответствия ТР ТС. Персонал, обслуживающий машину, должен пройти обучение по охране труда и иметь допуск к работе с электроустановками и грузоподъемными механизмами.
Источники информации
- Официальный сайт Федеральной службы по надзору в сфере природопользования
- Министерство природных ресурсов и экологии РФ: отчеты о состоянии отрасли 2025-2026
- Хабр: раздел «Промышленное программирование и автоматизация»
- Федеральное агентство по техническому регулированию и метрологии (Росстандарт)
- Торгово-промышленная палата РФ: аналитика рынка вторичных ресурсов
